Продам помещение свободного назначения, 422,7 м²

ул Пионерская, д. 4

50 000 000 руб.

?

$ 1 086

€ 979

118 287 руб./м²


422.7 м²

-1/2 этажей

Код объекта

126283

Предложение доступно для субагентов, авторизуйтесь

Продам Помещение свободного назначения, 422,7 м²

Код объекта: 126283.
Тип объекта: Помещение свободного назначения.
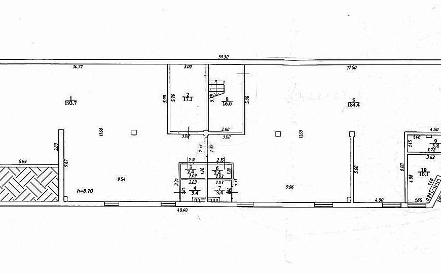
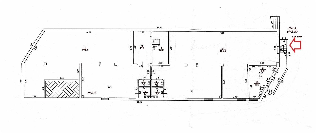
Площадь: 422.7 м².
Этаж / Этажность: -1 / 2.

Описание и характеристики

Предлагается к продаже цокольное помещение  площадью 422,7 кв.м. (действующий спортзал с оборудованием) в отдельно стоящем.

От Собственника. Без комиссии.
- Первая линия, высокий авто- и пеший трафик
- В помещение есть окна, потолок 3,1 м
- Действующий спортзал с базой клиентов, сотрудниками, оборудованием
- Основной зал и зал для групповых занятий
- Сплитсистемы, центральное отопление, 40 кВт, вентиляция
- Мужская и Женская раздевалки, душевые
- Запасный выход
- Парковка
От Собственника Без комиссии.

По всем вопросам можете обращаться к вашему персональному менеджеру Денис Присенко - консультант по коммерческой недвижимости.
Большая база коммерческой недвижимости.
От собственника. Без комиссии .
"Агентство регионального развития"
Коммерческая недвижимость Новороссийска.
От собственника. Без комиссии.
Подписывайтесь на наш профиль, чтобы узнавать о новых локациях первыми!

Перейти в карточку объекта в CRM: 126283.

АРР Новороссийск

+7 988 770-91-00

или оставьте ваш номер, и я перезвоню в течение 30 минут

Отправляя заявку вы соглашаетесь на обработку персональных данных

50 000 000 руб.

?

$ 639 168

€ 542 925

118 287 руб./м²


422.7 м²

-1/2 этажей

Код объекта

126283

Предложение доступно для субагентов, авторизуйтесь

АРР Новороссийск

+7 988 770-91-00

или оставьте ваш номер, и я перезвоню в течение 30 минут

Отправляя заявку вы соглашаетесь на обработку персональных данных

Похожие объявления

Посмотреть все похожие объявления
1/4
Код объекта: 49058.
Тип объекта: Помещение свободного назначения.
Площадь: 390.1 м².
Этаж / Этажность: 1 / 5.
1/12
Код объекта: 405193.
Тип объекта: Помещение свободного назначения.
Площадь: 153.8 м².
Этаж / Этажность: 1 / 24.
1/15
Код объекта: 401416.
Тип объекта: Помещение свободного назначения.
Площадь: 519 м².
Этаж / Этажность: 1 / 18.
1/16
Код объекта: 258005.
Тип объекта: Помещение свободного назначения.
Площадь: 277 м².
Этаж / Этажность: 1 / 9.
1/8
Код объекта: 221183.
Тип объекта: Помещение свободного назначения.
Площадь: 460 м².
Этаж / Этажность: 1 / 3.
1/4
Код объекта: 49058.
Тип объекта: Помещение свободного назначения.
Площадь: 390.1 м².
Этаж / Этажность: 1 / 5.
1/16
Код объекта: 224954.
Тип объекта: Помещение свободного назначения.
Площадь: 492.5 м².
Этаж / Этажность: -1 / 10.
1/16
Код объекта: 218951.
Тип объекта: Помещение свободного назначения.
Площадь: 429 м².
Этаж / Этажность: 2 / 2.
1/12
Код объекта: 241996.
Тип объекта: Помещение свободного назначения.
Площадь: 465 м².
Этаж / Этажность: 3 / 3.
1/10
Код объекта: 221585.
Тип объекта: Отдельно стоящее здание.
Площадь: 344 м².
Этаж / Этажность: 1 / 2.
1/6
Код объекта: 243432.
Тип объекта: Земельный участок.
Площадь: 26200 .
1/6
Код объекта: 200717.
Тип объекта: Торговое помещение.
Площадь: 500 м².
Этаж / Этажность: 2 / 4.
1/4
Код объекта: 200639.
Тип объекта: Помещение свободного назначения.
Площадь: 538 м².
Этаж / Этажность: 3 / 4.
1/5
Код объекта: 230123.
Тип объекта: Торговое помещение.
Площадь: 139.7 м².
Этаж / Этажность: -1 / 17.

Не хочу искать, перезвоните мне!

Оставьте номер телефона, наш специалист свяжется с вами и поможет с подбором недвижимости!