Сдам торговое помещение 715 м²

ул Энгельса, д. 89

500 000 руб.

?

$ 1 086

€ 979

699 руб./м²


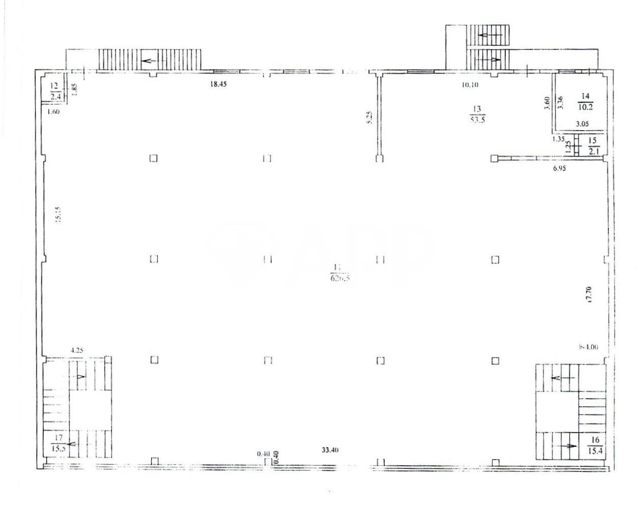
715 м²

2/2 этажей

Код объекта

114592

Предложение доступно для субагентов, авторизуйтесь

Сдам Торговое помещение 715 м²

Код объекта: 114592.
Тип объекта: Торговое помещение.
Площадь: 715 м².
Этаж / Этажность: 2 / 2.
Назначения: Магазин.

Описание и характеристики

Предлагается в аренду помещение ул.Энгельса на первой линии
От собственника. Без комиссии.
- Первая линия.
- Два просторных входа с Энгельса
- Территория для разгрузки и 2 входа.  
- Высокий пешеходный и транспортный трафик.
- Над супермаркетом Магнит и рядом с магазином СпортМастер.
- Близость к остановкам общественного транспорта.
- Большая парковочная линия.
- Охранная, пожарная сигнализация.
Помещение в отдельно стоящем здании свободной планировки колонного типа с витражным остеклением, подойдет под непродовольственный магазин, офис, учебно-развлекательное заведение, детский центр и другое.
- Все коммуникации городские.
От собственника. Без комиссии.

По всем вопросам можете обращаться к вашему персональному менеджеру:
Михаил - консультант по коммерческой недвижимости.
"Агентство регионального развития" Коммерческая недвижимость Новороссийска.
Большая база коммерческой недвижимости.
От собственника. Без комиссии.
Подписывайтесь на наш профиль, чтобы узнавать о новых локациях первыми!

Перейти в карточку объекта в CRM: 114592.

АРР Новороссийск

+7 988 770-91-00

или оставьте ваш номер, и я перезвоню в течение 30 минут

Отправляя заявку вы соглашаетесь на обработку персональных данных

500 000 руб.

?

$ 6 525

€ 5 520

699 руб./м²


715 м²

2/2 этажей

Код объекта

114592

Предложение доступно для субагентов, авторизуйтесь

АРР Новороссийск

+7 988 770-91-00

или оставьте ваш номер, и я перезвоню в течение 30 минут

Отправляя заявку вы соглашаетесь на обработку персональных данных

Похожие объявления

Посмотреть все похожие объявления
1/21
Код объекта: 263026.
Тип объекта: Торговое помещение.
Площадь: 377 м².
Этаж / Этажность: 1 / 2.
1/8
Код объекта: 258017.
Тип объекта: Торговое помещение.
Площадь: 600 м².
Этаж / Этажность: 2 / 2.
1/16
Код объекта: 404237.
Тип объекта: Торговое помещение.
Площадь: 520 м².
Этаж / Этажность: 1 / 1.
1/10
Код объекта: 220752.
Тип объекта: Торговое помещение.
Площадь: 500 м².
Этаж / Этажность: 2 / 2.
1/21
Код объекта: 287182.
Тип объекта: Торговое помещение.
Площадь: 290 м².
Этаж / Этажность: 1 / 9.
1/11
Код объекта: 267844.
Тип объекта: Торговое помещение.
Площадь: 550 м².
Этаж / Этажность: 2 / 2.
1/8
Код объекта: 258017.
Тип объекта: Торговое помещение.
Площадь: 600 м².
Этаж / Этажность: 2 / 2.
1/16
Код объекта: 404237.
Тип объекта: Торговое помещение.
Площадь: 520 м².
Этаж / Этажность: 1 / 1.
1/10
Код объекта: 221585.
Тип объекта: Отдельно стоящее здание.
Площадь: 344 м².
Этаж / Этажность: 1 / 2.
1/6
Код объекта: 243432.
Тип объекта: Земельный участок.
Площадь: 26200 .
1/6
Код объекта: 200717.
Тип объекта: Торговое помещение.
Площадь: 500 м².
Этаж / Этажность: 2 / 4.
1/4
Код объекта: 200639.
Тип объекта: Помещение свободного назначения.
Площадь: 538 м².
Этаж / Этажность: 3 / 4.
1/11
Код объекта: 258113.
Тип объекта: Помещение свободного назначения.
Площадь: 200 м².
Этаж / Этажность: 2 / 2.

Не хочу искать, перезвоните мне!

Оставьте номер телефона, наш специалист свяжется с вами и поможет с подбором недвижимости!