Сдаю угловое помещение 1 линия, 134 м²

б-р Имени Дмитрия Шостаковича, д. 20

150 000 руб.

?

$ 1 086

€ 979

1 119 руб./м²


134 м²

1/1 этажей

Код объекта

130318

Предложение доступно для субагентов, авторизуйтесь

Сдаю угловое помещение 1 линия, 134 м²

Код объекта: 130318.
Тип объекта: Помещение свободного назначения.
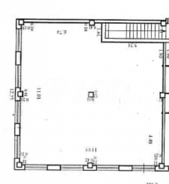
Площадь: 134 м².
Этаж / Этажность: 1 / 1.

Описание и характеристики

Сдаю угловое помещение 1 этаж 1 линия, 134 м² Южный район с высоким трафиком
От Собственника. Без комиссии
- Расположение: Южный район, первая линия, угловое помещение, удобный подъезд, близость к автобусным остановкам, в шаговой доступности гипермаркет "Лента"
- Преимущества: первый этаж, парковка, возможность размещения вывески на фасаде
- Характеристики: с  ремонтом, свободная планировка, просторное помещение, санузел, вытяжка, сплит-система, электричество 15 кВт, центральные коммуникации, отопление, коммунальные платежи оплачиваются отдельно, платеж за первый и последний месяц аренды
- Подойдет под: магазин (розница, одежда, сувениры), салон красоты или барбершоп, офис или шоу-рум, кафе или пекарня, студия (йога, массаж, творческая), мастерская, медицину, банки, алкомаркет, винотека, аптека, услуги, цветы
От Собственника. Без комиссии

По всем вопросам можете обращаться к вашему персональному менеджеру:
Александр - консультант по коммерческой недвижимости.
Подписывайтесь на наш профиль, чтобы узнавать о новых локациях первыми!

Перейти в карточку объекта в CRM: 130318.

АРР Новороссийск

+7 988 770-91-00

или оставьте ваш номер, и я перезвоню в течение 30 минут

Отправляя заявку вы соглашаетесь на обработку персональных данных

150 000 руб.

?

$ 1 971

€ 1 691

1 119 руб./м²


134 м²

1/1 этажей

Код объекта

130318

Предложение доступно для субагентов, авторизуйтесь

АРР Новороссийск

+7 988 770-91-00

или оставьте ваш номер, и я перезвоню в течение 30 минут

Отправляя заявку вы соглашаетесь на обработку персональных данных

Похожие объявления

Посмотреть все похожие объявления
1/11
Код объекта: 258113.
Тип объекта: Помещение свободного назначения.
Площадь: 200 м².
Этаж / Этажность: 2 / 2.
1/24
Код объекта: 287128.
Тип объекта: Помещение свободного назначения.
Площадь: 140 м².
Этаж / Этажность: 1 / 17.
1/8
Код объекта: 205665.
Тип объекта: Помещение свободного назначения.
Площадь: 230 м².
Этаж / Этажность: 2 / 2.
1/13
Код объекта: 251881.
Тип объекта: Помещение свободного назначения.
Площадь: 152.5 м².
Этаж / Этажность: 1 / 16.
1/21
Код объекта: 262969.
Тип объекта: Помещение свободного назначения.
Площадь: 150 м².
Этаж / Этажность: 1 / 3.
1/10
Код объекта: 262248.
Тип объекта: Помещение свободного назначения.
Площадь: 105.6 м².
Этаж / Этажность: 1 / 17.
1/24
Код объекта: 287128.
Тип объекта: Помещение свободного назначения.
Площадь: 140 м².
Этаж / Этажность: 1 / 17.
1/13
Код объекта: 251881.
Тип объекта: Помещение свободного назначения.
Площадь: 152.5 м².
Этаж / Этажность: 1 / 16.
1/21
Код объекта: 262969.
Тип объекта: Помещение свободного назначения.
Площадь: 150 м².
Этаж / Этажность: 1 / 3.
1/20
Код объекта: 367933.
Тип объекта: Помещение свободного назначения.
Площадь: 131.7 м².
Этаж / Этажность: 1 / 9.
1/10
Код объекта: 221585.
Тип объекта: Отдельно стоящее здание.
Площадь: 344 м².
Этаж / Этажность: 1 / 2.
1/6
Код объекта: 243432.
Тип объекта: Земельный участок.
Площадь: 26200 .
1/6
Код объекта: 200717.
Тип объекта: Торговое помещение.
Площадь: 500 м².
Этаж / Этажность: 2 / 4.
1/4
Код объекта: 200639.
Тип объекта: Помещение свободного назначения.
Площадь: 538 м².
Этаж / Этажность: 3 / 4.
1/5
Код объекта: 230123.
Тип объекта: Торговое помещение.
Площадь: 139.7 м².
Этаж / Этажность: -1 / 17.

Не хочу искать, перезвоните мне!

Оставьте номер телефона, наш специалист свяжется с вами и поможет с подбором недвижимости!